6203 Shadow Bend, Austin, TX




Proyecto Colina fue una remodelación integral, pensada para elevar el valor de la propiedad y maximizar su rentabilidad. Con una inversión de $84,504, se actualizó tanto el diseño interior como los acabados, creando un hogar moderno, funcional y atractivo para los inquilinos.
Con un ARV de $460,000, el proyecto no solo aumentó el valor de la propiedad, sino que también garantizó una opción de renta estable y confiable para los años venideros.
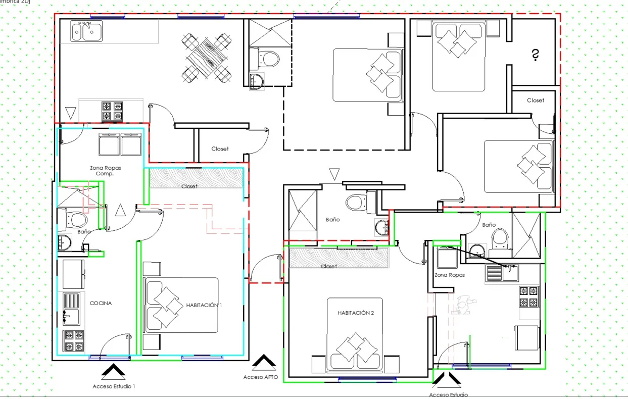
Para Proyecto Colina, la idea era transformar una propiedad sólida en un hogar moderno y eficiente. Después de revisar las posibilidades del espacio, nuestros expertos diseñaron un rediseño que aprovecha la luz natural y crea un ambiente cómodo para los inquilinos. Los planos muestran cómo la remodelación optimiza tanto el valor del inmueble como su capacidad para generar ingresos sostenibles.
3 Apartamentos
Con 3 apartamentos independientes, Proyecto Colina es una oportunidad de renta versátil. Cada apartamento ofrece un espacio cómodo y funcional, ideal para diferentes perfiles de inquilinos. Los ingresos generados por cada unidad son:
Apartamento 1: $2,400 al mes, lo que equivale a $28,800 anuales
Apartamento 2: $1,200 al mes, lo que equivale a $14,400 anuales
Apartamento 3: $1,200 al mes, lo que equivale a $14,400 anuales
Ingreso bruto anual total: $57,600.
Proyecto Colina representa una inversión rentable y estable, ideal para aquellos que buscan un ingreso pasivo constante y una apreciación anual de $24,380.





